注册
登录
搜索
标签
帮助
BBS
»
时事新闻专区
» 线上看房总结:帝都奇葩户型大赏
‹‹ 上一主题
|
下一主题 ››
发新话题
发布投票
发布商品
发布悬赏
发布活动
发布辩论
发布视频
打印
线上看房总结:帝都奇葩户型大赏
游客
X.X.X.X
未注册
1楼帖子
大
中
小
发表于 2021-2-22 16:44
线上看房总结:帝都奇葩户型大赏
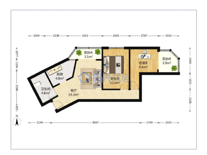
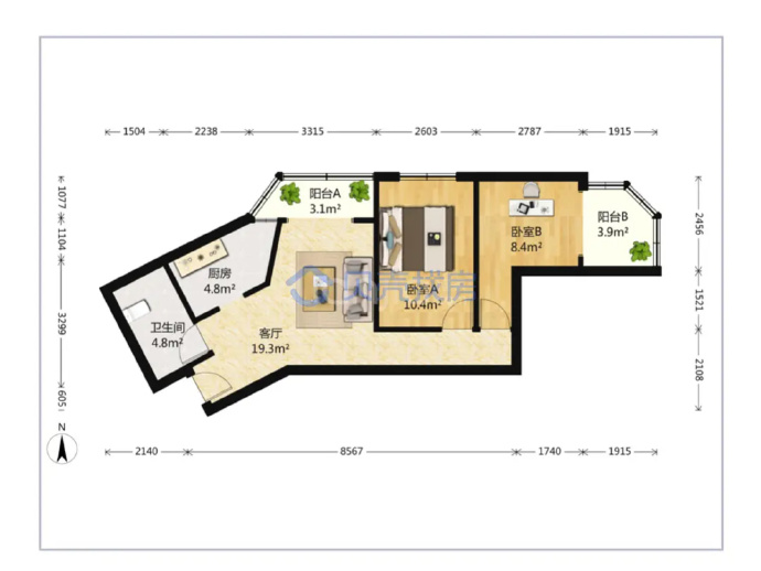
1.jpg
(58.67 KB)
2021-2-22 16:44
奇葩之王
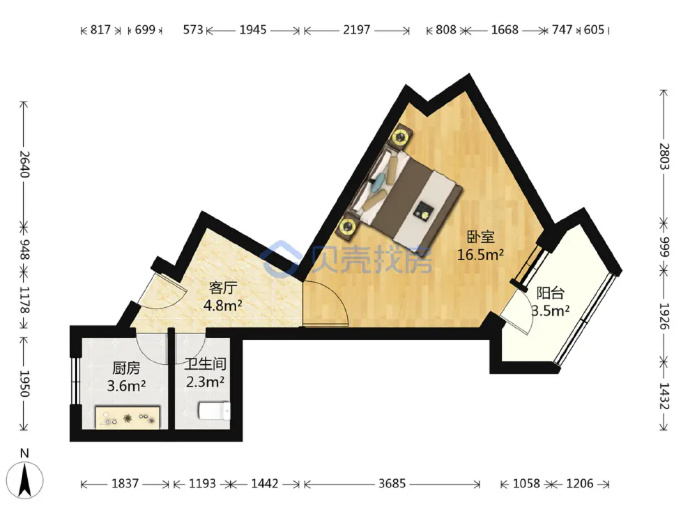
2.jpg
(69.32 KB)
2021-2-22 16:44
像个马桶
3.jpg
(70.61 KB)
2021-2-22 16:44
这个相比起来还算正常,但不知道这个厨房当初怎么设计的
4.jpg
(52.73 KB)
2021-2-22 16:44
这个单价.13.万
5.jpg
(59.93 KB)
2021-2-22 16:44
单价.14.万
6.jpg
(65.84 KB)
2021-2-22 16:44
泡泡枪户型
7.jpg
(75.17 KB)
2021-2-22 16:44
每个房间都比较方正的??
8.jpg
(54.7 KB)
2021-2-22 16:44
开口大的泡泡枪
9.jpg
(79.9 KB)
2021-2-22 16:44
2000.+.万工体豪华群租房
10.jpg
(98.83 KB)
2021-2-22 16:44
大面积怪户型没准也是一种情趣
二手房户型烂就算了,新房也不例外,千万级别的新盘户型如下
11.jpg
(56.29 KB)
2021-2-22 16:44
方正的??
12.jpg
(74.32 KB)
2021-2-22 16:44
相比起来这是最正常的一个了,但作为一个单价.12+,总价.1500.+.的期房……
引用
回复
TOP
游客
X.X.X.X
未注册
2楼帖子
大
中
小
发表于 2021-2-23 09:42
前面那些图,厨房3-5平方,就放个灶台就满了,还没一个厕所大,啧啧啧,还是生活在六线小县城幸福感强
引用
回复
TOP
游客
X.X.X.X
未注册
3楼帖子
大
中
小
发表于 2021-2-23 10:04
看了第一张奇葩之王被震惊到了:到底是什么样子的大楼能出那么奇葩的户型?[45]
引用
回复
TOP
‹‹ 上一主题
|
下一主题 ››
查看积分策略说明
快速回复主题
选项
禁用 URL 识别
禁用
表情
禁用
Discuz!代码
使用个人签名
接收新回复邮件通知
标题
内容
发表帖子
[完成后可按 Ctrl+Enter 发布]
预览帖子
恢复数据
清空内容
最近访问的版块 ...
影视歌漫画书画发布区
科学、生活、常识、益智
文学殿堂
旅游、摄影、美图、壁纸
BBS
xnote.cn交流专区
旅游、摄影、美图、壁纸
文学殿堂
科学、生活、常识、益智
时事新闻专区
影视歌漫画书画发布区
电脑、手机、平板知识专栏