注册
登录
搜索
标签
帮助
BBS
»
科学、生活、常识、益智
» 神一样的“奇葩户型”为何还这么抢手?
‹‹ 上一主题
|
下一主题 ››
发新话题
发布投票
发布商品
发布悬赏
发布活动
发布辩论
发布视频
打印
神一样的“奇葩户型”为何还这么抢手?
游客
X.X.X.X
未注册
1楼帖子
大
中
小
发表于 2017-10-26 19:19
神一样的“奇葩户型”为何还这么抢手?
1.jpg
(49.48 KB)
2017-10-26 19:19
26岁的小王看房半年,一开始这也要那也要,可如今要求降低到五个字:买得起就行。当他从中介那得知长宁区有个480万的房子要卖的时候,马上就鸡冻得要下定金,根本顾不上这是个走廊长到可以开美术展的户型——次卧与主体之间通过一条长长的过道连接,总面积不到78平方米,仅过道就超过31平方米。
在赶到约好中介看房之前,朋友圈传来报告,此房已经以高铁般的速度被“秒光”了。
2.jpg
(16.67 KB)
2017-10-26 19:19
号称两个房间走一走需要百米赛跑的“奇葩户型”(资料图/图)
无独有偶。此前,当北京大兴的小杨对一个41.37平方米的“多功能马桶”户型品头论足时,满心想的是假如他转身离开,原业主就会跪着求他买下。但业主显然没有这样做,次日,把心理价位压到150万的小杨发现它以202.5万元的价格卖了出去。
3.jpg
(35.29 KB)
2017-10-26 19:19
边角弯曲到不可思议的“多功能马桶”户型(资料图/图)
这样的房子都有人要?
其实,这样的例子还有很多。那些在网上饱受羞辱的“奇葩户型”,无论是被幽默地称为“菜刀户型”、“打飞机户型”,还是被一本正经地形容为“抽象派户型”,都无一例外地或是地段好,或是靠近地铁,加上价格上富有吸引力,总是能以令羞辱者瞠目结舌的速度卖出去。
4.jpg
(98.28 KB)
2017-10-26 19:19
越是大城市,越是奇葩户型的高产地
小王通过媒体报道和看房生涯总结出一个规律:越是大城市,越有可能产生奇葩户型,越是小城市,户型越是方正敞亮,到了农村,哪里还有户型之虑?但小王心里很清楚,不能用农村“坐北朝南”的标准要求大城市“方正规整”,在寸土寸金的城市化浪潮里,“极尽空间利用”的“小而美”户型才是建筑的主流。
被网友们评为“奇葩之首”的“跑道户型”,位于上海长宁的五环大楼。这是一座建成于1998年的普通住宅,户数260人,容积率在3.2左右。
我们不用亲眼见到五环大楼的真模样,通过容积率就能了解其大体状况。所谓容积率,指一个小区的地上总建筑面积与用地面积的比率。如面积100平方米地块,每层建筑面积100平方米,建2层,总建筑面积200平方米,容积率就是2.0;如果建3层,每层建筑面积50平方米,总建筑面积150平方米,容积率就是1.5。
3.2的容积率,对应一般是18层以上的建筑。
5.jpg
(30.47 KB)
2017-10-26 19:19
现行城市规划法规体系下编制的一般容积率(资料图/图)
12层以上就可以视为高层塔楼。和以前“大而豪”的户型空间相比,要有效对接刚需,实现土地空间利用最大化,开发商们就要遵循两个原则:
1、尽量做高层。能做18层不做11层,能做30层不做18层。2、户型配比高。尽量不要做一梯两户,应以一梯四户为主,有些甚至做到一梯8户。
造型奇葩的“港式住宅”
生活在1979年前的人可能很难想象一梯8户是什么样。但从住宅市场化开始之后,塔式高层就迅速进入内陆,第一个吃螃蟹的便是广州。当时广州采取“引进外资”兴建一批新型住宅区,被人们称为“港式住宅”。
1979年开始建设的东湖新村16层塔式高层住宅是广州港式高层住宅最早的实例之一,其平面为一梯八户。采用典型的港式“井字”建筑,特点是平面形态四向均衡 或对称布置,不太注重朝向。
6.jpg
(36.05 KB)
2017-10-26 19:19
东湖新村呈“井”字状的塔式高层(资料图/图)
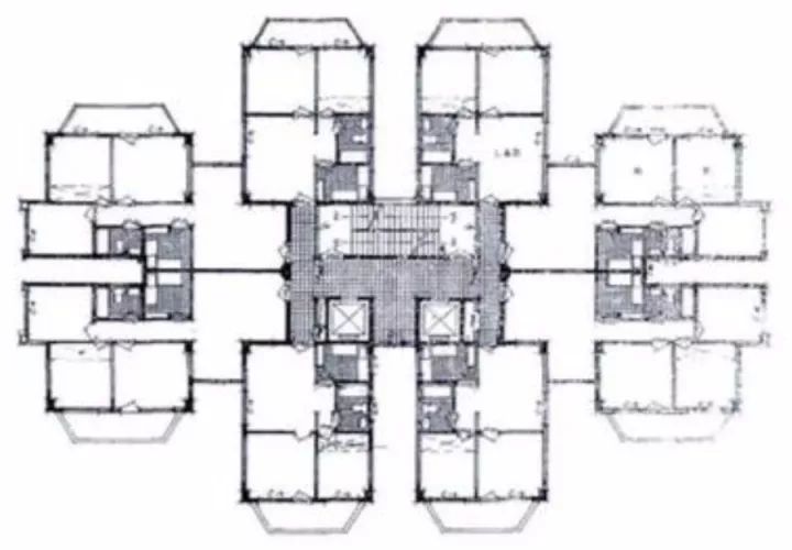
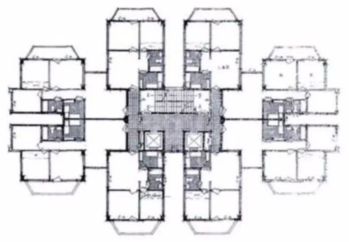
从1979年移植香港塔式高层住宅模式开始,2000年以后广州地区塔式高层住宅 设计得到进一步发展,更加注重结合本地社会经济技术的具体条件,出现一大批令人匪夷所思的建筑风格,如井字形、十字形、Y字形、风车形、蝶形及其他等。
7.jpg
(30.66 KB)
2017-10-26 19:19
上图为一系列“港式高层塔楼”的内地进阶版(资料图/图)
受制于具体设计工种配合上不能协调一致,或者施工单位贪便宜、图速度,再加上建筑投资费用上的限制,设计师们往往要脑洞大开,极尽所能地利用好每个空间。而从烟花缭乱的平面图上一看,当出现一梯十几户的户型,奇葩户型不是必然吗?
南北不同差异大,寸土寸金奇葩多
初到广州的北方同学绞尽脑汁也想不出房子如此不守规矩。在他们的印象中,卧室应该尽量朝南,南北要尽量通透,方方正正的房子才是好房子。
而香港、新加坡、日本等一系列人多地少的地区或国家,正将塔式高层作为别无他法的现实选择。
首先是朝向问题。北方同学到广州的第一个印象是没有“东西南北”的方向感,不仅路是这样,房子也是任性生长,除了门口等讲究“风水”,卧室各种方向都有。这是因为南方光照充足,你睡在北边的卧室,照样可能享受到被阳光晒屁股的待遇。
与此对应的是建筑单体形态。北方很多讲究排列,楼间距;南方形态灵活,V 字形、 风车形、Y 字形、T 字形等不胜枚举,甚至有各种形态的拼接组合。
再就是户型面宽和进深尺度。南方因为朝向不受限制,且为增大户型采光面提高舒适度,外墙一般折线、凹凸变化较大,户型基本都大面宽、小进深设计;北方地区日照有限,为解决容积率压力,户型设计一般面宽小、进深大,且因为节能原因,外墙展开面越小越好,户型一般比较方正、规整,尽量少凹凸变化。
此外,被人们津津乐道的飘窗设计,也是典型的“港式风格”。
8.jpg
(31.56 KB)
2017-10-26 19:19
南(左)北(右)方的典型住宅单元户型设计对比图(资料图/图)
作为中国改革开放的前沿阵地,南方沿海地区基本也是中国房地产市场的发源地。特别是随着市场化进一步发展,南方的房地产商走向全国(万科、恒大、碧桂园等都在广东),从而把塔式高层的设计风格带到全国各地,引领着中国住宅市场设计的走向。
而“奇葩户型”多在大城市产生的另一个原因,便是这些地方寸土寸金,人多地少,要想办法提高空间利用率。有心的同学可能已经发现,商业产品性质“奇葩户型”尤其多:对于一套周边涵盖了城市重要的地铁公交、生活便利的商业街、重点名校大城市的房子而言,朝向和通风还重要吗?
当然,房子毕竟是用来住的,建筑还是要“以人为本”。建筑人的产品和环境,要努力适应当地的自然和社会。在人们物质需求不断提高的当下,那些完全照搬“港式风格”的建筑,也未必总会受人欢迎。
引用
回复
TOP
游客
X.X.X.X
未注册
2楼帖子
大
中
小
发表于 2017-10-27 16:23
学位房的怎么奇把也大把人抢
引用
回复
TOP
‹‹ 上一主题
|
下一主题 ››
查看积分策略说明
快速回复主题
选项
禁用 URL 识别
禁用
表情
禁用
Discuz!代码
使用个人签名
接收新回复邮件通知
标题
内容
发表帖子
[完成后可按 Ctrl+Enter 发布]
预览帖子
恢复数据
清空内容
最近访问的版块 ...
时事新闻专区
BBS
xnote.cn交流专区
旅游、摄影、美图、壁纸
文学殿堂
科学、生活、常识、益智
时事新闻专区
影视歌漫画书画发布区
电脑、手机、平板知识专栏